怡雅苑 #3634607 售盤樓盤詳細資料

樓盤編號# 3634607
物業編號: F0127399 (代理提供)

大埔 怡雅苑 [代理盤]
C座 低層
怡雅苑 綠表 新裝 開揚 園景

️三房 有裝️ 四球到
*綠表售盤* 大埔(怡雅苑)新十字形 1993年
最高9成半按揭 30年按揭
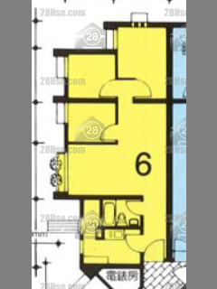
️ 建呎710’ 實呎554’
️ 三房 兩廳
️ 園景 開揚
️ 企理裝修
️ 未補地價
️ 屋苑設大量園藝 設施

住宅
居屋
普通盤
5 日前 刊登
瀏覽人次#175
有景觀
有裝修
望園景
豪華裝修
刊登:2025-11-08 | 更新:2025-11-08
電話 QRCode
售價
售 $418 萬元
未補地價
按揭每月供款
首期 $125 萬元, 按揭成數 70%
按揭利率 3%, 供款年期 25年
*以上價錢只供參考
建築面積
710 平方呎
呎價: @5,887 元
實用面積
554 平方呎
呎價: @7,545 元
地區屋苑
怡雅苑
新界 大埔
座數及單位: C座 低層
屋苑樓齡: 32 年
座向(客廳)
單位樓層
低層
房間及浴室
3 房 1 浴室
廚房類型
梗廚
廚房煮食模式
明火煮食
小學校網
中學校網
物業地址
安埔路15號
怡雅苑( 巴士站 )
90 米
富善邨總站( 巴士站 )
148 米
新興花園( 巴士站 )
265 米

地產代理公司資料

公司地址: 大埔昌運中心1樓81號舖
公司牌照號碼: E-153310
售盤: 15 租盤: 5

放盤聯絡人

馮生 Michael Fung 卡片

代理個人牌照號碼: S129582

怡雅苑 其他單位

怡雅苑 | A座 28樓 7室
實645呎 @ $8,992
2025-10-27
註冊處成交
3房
$580 萬元
- 30.7%
怡雅苑 | B座 6樓 5室
建515呎 @ $6,845
2025-10-20
註冊處成交
2房
$352.5 萬元
+ 267.2%
實401呎 @ $8,791
2025-10-14
市場成交
2房
$352.5 萬元
怡雅苑 | B座 6樓 4室
建827呎 @ $5,139
2025-09-10
註冊處成交
3房
$425 萬元
怡雅苑 | B座 18樓 5室
實401呎 @ $8,978
2025-09-09
註冊處成交
2房
$360 萬元
怡雅苑 | E座 13樓 3室
實401呎 @ $9,950
2025-08-14
註冊處成交
2房
$399 萬元
- 16.5%
怡雅苑 | C座 27樓 9室
建827呎 @ $5,623
2025-08-01
註冊處成交
3房
$465 萬元
實401呎 @ $9,950
2025-07-28
市場成交
2房
$399 萬元
實645呎 @ $7,209
2025-07-21
市場成交
3房
$465 萬元
怡雅苑 | A座 13樓 1室
建515呎 @ $5,243
2025-06-20
註冊處成交
2房
$270 萬元
注意事項
即使你對樓盤有多大興趣,在與放盤人見面前,不要先付任何訂金或費用。慎防網上騙子。
為了減少樓盤的不實情況,我們會對代理人身份及公司會進行 100% 核實。如發現樓盤有違規情況,可使用上面的投訴表單,我們的管理員會進行處理,你亦可致電 Tel: 21112777 EAA (地產代理監管局) 投訴 ,我們會配合 EAA 的每一宗案件。