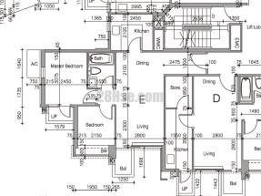
溱林 大厦 第10座 3楼 E室

洪水桥 洪水桥洪顺路18号

单位资料

屋苑期数:
大厦
屋苑座数:
第10座
实用面积:
实542尺
房间数量:
2房
成交宗数:
1

单位成交纪录

2018-05-30

成交价
$730 万元
实用尺价
$13,469
成交类别
注册处成交
成交赚幅
+53.5%
上手成交日期
2013-08-01