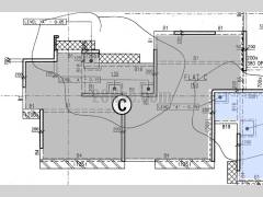
漾日居 7座 41楼 C室

九龙站 柯士甸道西1号

单位资料

屋苑座数:
7座
建筑面积:
建833尺
实用面积:
实639尺
房间数量:
2房
成交宗数:
1

单位成交纪录

2023-02-28

成交价
$1,550 万元
建筑尺价
$18,607
实用尺价
$24,257
成交类别
注册处成交
成交赚幅
+210%
上手成交日期
2015-11-30