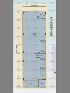
爱月阁
|
爱月阁 3楼 A室
实252尺 @ $10,913
2025-03-24
注册处成交
$275 万元
- 2.3%