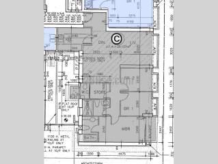
碧堤半岛 1座23楼 C室

深井(荃湾) 青山公路深井段33号

单位资料

屋苑座数:
1座
建筑面积:
建1,263尺
实用面积:
实968尺
房间数量:
3
成交宗数:
0