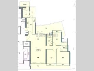
贝沙湾 4期6座7楼 C室

南区 贝沙湾道38号

单位资料

屋苑期数:
4期
屋苑座数:
6座
建筑面积:
建1,608尺
实用面积:
实1,200尺
房间数量:
3
成交宗数:
0