怡雅苑 #3611146 售盤樓盤詳細資料

樓盤編號# 3611146
物業編號: R152288 (代理提供)

大埔 怡雅苑 [代理盤]
B座 低層
3房大單位,清雅企理裝修,環境清靜

怡雅苑 @ 綠表賣盤
政府擔保,免收入證明/ 壓力測試
最高可借90%/95%,最長供30年
合持綠表資格人士/ 白居二️️
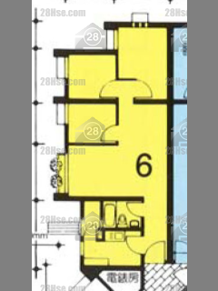
實用554呎
3房2廳
少有3房大單位居二市場,賣少見少
環境靜中帶旺,純住宅區
新淨雅緻裝修,油下油可以即住
交通方便,有接駁巴士來往大埔墟
鄰近富善邨,岩哂附近分支家庭
...

住宅
居屋
黃金置頂盤
3 日前 刊登
瀏覽人次#369
有裝修
有景觀
雅緻裝修
望開揚景
刊登:2025-10-17 | 更新:2025-10-19
電話 QRCode
售價
售 $418 萬元
未補地價
按揭每月供款
首期 $125 萬元, 按揭成數 70%
按揭利率 3%, 供款年期 25年
*以上價錢只供參考
建築面積
710 平方呎
呎價: @5,887 元
實用面積
554 平方呎
呎價: @7,545 元
地區屋苑
怡雅苑
新界 大埔
座數及單位: B座 低層
屋苑樓齡: 32 年
單位樓層
低層
房間及浴室
3 房 1 浴室
小學校網
中學校網
物業地址
安埔路15號
怡雅苑( 巴士站 )
90 米
富善邨總站( 巴士站 )
148 米
新興花園( 巴士站 )
265 米

地產代理公司資料

公司地址: 新界大埔昌運中心商場 1樓103及104A舖
公司牌照號碼: C-002467
售盤: 61 租盤: 11

放盤聯絡人

陳詩佩 Candy Chan   卡片

代理個人牌照號碼: S-302803
廣東話    普通話    英文

怡雅苑 其他單位

怡雅苑 | B座 6樓 4室
建827呎 @ $5,139
2025-09-10
註冊處成交
3房
$425 萬元
怡雅苑 | B座 18樓 5室
實401呎 @ $8,978
2025-09-09
註冊處成交
2房
$360 萬元
怡雅苑 | E座 13樓 3室
實401呎 @ $9,950
2025-08-14
註冊處成交
2房
$399 萬元
- 16.5%
怡雅苑 | C座 27樓 9室
建827呎 @ $5,623
2025-08-01
註冊處成交
3房
$465 萬元
實401呎 @ $9,950
2025-07-28
市場成交
2房
$399 萬元
實645呎 @ $7,209
2025-07-21
市場成交
3房
$465 萬元
怡雅苑 | A座 13樓 1室
建515呎 @ $5,243
2025-06-20
註冊處成交
2房
$270 萬元
怡雅苑 | B座 2樓 9室
實645呎 @ $6,171
2025-06-06
註冊處成交
3房
$398 萬元
怡雅苑 | C座 30樓 3室
建515呎 @ $7,282
2025-06-02
註冊處成交
2房
$375 萬元
+ 252.1%
實401呎 @ $9,352
2025-05-26
市場成交
2房
$375 萬元
注意事項
即使你對樓盤有多大興趣,在與放盤人見面前,不要先付任何訂金或費用。慎防網上騙子。
為了減少樓盤的不實情況,我們會對代理人身份及公司會進行 100% 核實。如發現樓盤有違規情況,可使用上面的投訴表單,我們的管理員會進行處理,你亦可致電 Tel: 21112777 EAA (地產代理監管局) 投訴 ,我們會配合 EAA 的每一宗案件。