元朗山水盈一手新盘

山水盈
Crescent Green

元朗, 高埔径3号
路劲基建
2021年入伙(已入伙)
8张价单
已售罄 | 331伙
折实尺价
-
已售尺价
9,900 - 29,711
山水盈由路劲基建发展,位于高埔径3号,设有9座住宅大厦(第1 座至第3 座及第5 座至第10 座)及29座洋房(洋房1 号至洋房33 号,不设洋房4 号、洋房13 号、洋房14 号及洋房24 号),合并提供331伙。 单位分层300至1,012平方尺,间隔为开放式、2房连储物室、3房连套房、3房连套房及储物室连厕、3房连套房及储物室连厕加士多房。 洋房2,101至3,889平方尺,间隔为3房连3套房及储物室连厕、4房连双套房及储物室连厕、4房连3套房及储物室连厕,以及7房连4套房及储物室加储物室连厕

山水盈 价单

已使用最高折扣 21%
调整折扣
刷新中...
日期 面积 折实价
价单 8 号 - 1 伙 2021-09-27 999尺 $1,519.2万
价单 7B 号 - 22 伙 2021-06-17 996 - 1006尺 $1,043万 - $1,239.6万
价单 6E 号 - 34 伙 2021-06-17 913 - 1012尺 $1,006.8万 - $1,464.2万
价单 5F 号 - 34 伙 2021-06-17 732 - 946尺 $860.2万 - $1,014万
价单 4F 号 - 37 伙 2021-06-17 300 - 997尺 $459.1万 - $1,213.8万
价单 3F 号 - 35 伙 2021-06-17 300 - 501尺 $448.2万 - $688.7万
价单 2G 号 - 35 伙 2021-06-17 970 - 996尺 $1,011.8万 - $1,155.4万
价单 1H 号 - 67 伙 2021-06-17 916 - 970尺 $873.6万 - $1,140.7万
山水盈 单位订价图 更新日期: 2019-11-19
山水盈 单位订价图 更新日期: 2019-11-19

户型及销售状况

所有单位

山水盈尺价走势

Loading...
尺价走势

山水盈 平面图

山水盈 物业布局图 平面图

山水盈 物业布局图

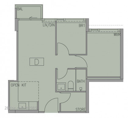
山水盈 1座 15楼 平面图

山水盈 1座 15楼

山水盈 1座 15楼 平面图

山水盈 1座 15楼

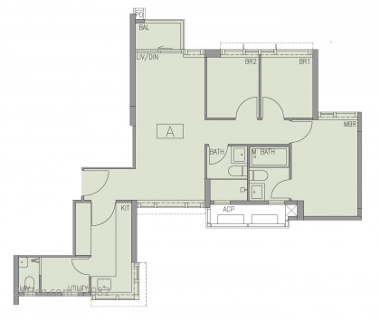
山水盈 1座 2-12楼 平面图

山水盈 1座 2-12楼

山水盈 1座 1楼 平面图

山水盈 1座 1楼

山水盈 1座 地下 平面图

山水盈 1座 地下

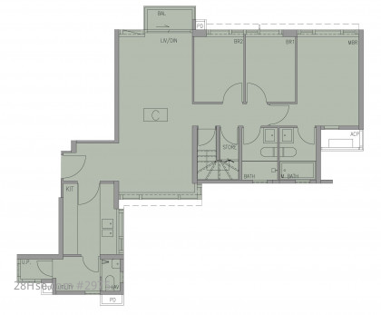
山水盈 2座 15楼 平面图

山水盈 2座 15楼

山水盈 2座 15楼 平面图

山水盈 2座 15楼

山水盈 2座 2-12楼 平面图

山水盈 2座 2-12楼

山水盈 2座 1楼 平面图

山水盈 2座 1楼

山水盈 2座 地下 平面图

山水盈 2座 地下

山水盈 3座 15楼 平面图

山水盈 3座 15楼

山水盈 3座 15楼 平面图

山水盈 3座 15楼

山水盈 3座 2-12楼 平面图

山水盈 3座 2-12楼

山水盈 3座 1楼 平面图

山水盈 3座 1楼

山水盈 3座 地下 平面图

山水盈 3座 地下

山水盈 5座 15楼 平面图

山水盈 5座 15楼

山水盈 5座 15楼 平面图

山水盈 5座 15楼

山水盈 5座 12楼 平面图

山水盈 5座 12楼

山水盈 5座 2-11楼 平面图

山水盈 5座 2-11楼

山水盈 5座 1楼 平面图

山水盈 5座 1楼

山水盈 6座 15楼 平面图

山水盈 6座 15楼

山水盈 6座 15楼 平面图

山水盈 6座 15楼

山水盈 6座 12楼 平面图

山水盈 6座 12楼

山水盈 6座 2-11楼 平面图

山水盈 6座 2-11楼

山水盈 6座 1楼 平面图

山水盈 6座 1楼

山水盈 7座 15楼 平面图

山水盈 7座 15楼

山水盈 7座 15楼 平面图

山水盈 7座 15楼

山水盈 7座 2-12楼 平面图

山水盈 7座 2-12楼

山水盈 7座 1楼 平面图

山水盈 7座 1楼

山水盈 7座 地下 平面图

山水盈 7座 地下

山水盈 8座 15楼 平面图

山水盈 8座 15楼

山水盈 8座 15楼 平面图

山水盈 8座 15楼

山水盈 8座 2-12楼 平面图

山水盈 8座 2-12楼

山水盈 8座 1楼 平面图

山水盈 8座 1楼

山水盈 8座 地下 平面图

山水盈 8座 地下

山水盈 9座 15楼 平面图

山水盈 9座 15楼

山水盈 9座 15楼 平面图

山水盈 9座 15楼

山水盈 9座 2-12楼 平面图

山水盈 9座 2-12楼

山水盈 9座 1楼 平面图

山水盈 9座 1楼

山水盈 9座 地下 平面图

山水盈 9座 地下

山水盈 10座 15楼 平面图

山水盈 10座 15楼

山水盈 10座 15楼 平面图

山水盈 10座 15楼

山水盈 10座 2-12楼 平面图

山水盈 10座 2-12楼

山水盈 10座 1楼 平面图

山水盈 10座 1楼

山水盈 10座 地下 平面图

山水盈 10座 地下

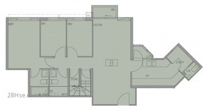
山水盈 HOUSE 1 平面图

山水盈 HOUSE 1

山水盈 HOUSE 1 平面图

山水盈 HOUSE 1

山水盈 HOUSE 2 平面图

山水盈 HOUSE 2

山水盈 HOUSE 2 平面图

山水盈 HOUSE 2

山水盈 HOUSE 3 平面图

山水盈 HOUSE 3

山水盈 HOUSE 5 平面图

山水盈 HOUSE 5

山水盈 HOUSE 6 平面图

山水盈 HOUSE 6

山水盈 HOUSE 7 平面图

山水盈 HOUSE 7

山水盈 HOUSE 8 平面图

山水盈 HOUSE 8

山水盈 HOUSE 8 平面图

山水盈 HOUSE 8

山水盈 HOUSE 9 平面图

山水盈 HOUSE 9

山水盈 HOUSE 10 平面图

山水盈 HOUSE 10

山水盈 HOUSE 11 平面图

山水盈 HOUSE 11

山水盈 HOUSE 12 平面图

山水盈 HOUSE 12

山水盈 HOUSE 15 平面图

山水盈 HOUSE 15

山水盈 HOUSE 16 平面图

山水盈 HOUSE 16

山水盈 HOUSE 17 平面图

山水盈 HOUSE 17

山水盈 HOUSE 18 平面图

山水盈 HOUSE 18

山水盈 HOUSE 18 平面图

山水盈 HOUSE 18

山水盈 HOUSE 19 平面图

山水盈 HOUSE 19

山水盈 HOUSE 20 平面图

山水盈 HOUSE 20

山水盈 HOUSE 21 平面图

山水盈 HOUSE 21

山水盈 HOUSE 22 平面图

山水盈 HOUSE 22

山水盈 HOUSE 23 平面图

山水盈 HOUSE 23

山水盈 HOUSE 25 平面图

山水盈 HOUSE 25

山水盈 HOUSE 26 平面图

山水盈 HOUSE 26

山水盈 HOUSE 27 平面图

山水盈 HOUSE 27

山水盈 HOUSE 27 平面图

山水盈 HOUSE 27

山水盈 HOUSE 28 平面图

山水盈 HOUSE 28

山水盈 HOUSE 28 平面图

山水盈 HOUSE 28

山水盈 HOUSE 29 平面图

山水盈 HOUSE 29

山水盈 HOUSE 30 平面图

山水盈 HOUSE 30

山水盈 HOUSE 31 平面图

山水盈 HOUSE 31

山水盈 HOUSE 32 平面图

山水盈 HOUSE 32

山水盈 HOUSE 33 平面图

山水盈 HOUSE 33

山水盈 停车位平面图 平面图

山水盈 停车位平面图

山水盈 停车位平面图 平面图

山水盈 停车位平面图

山水盈 新盘简介

发展商 路劲基建
入伙日期 预计于 2021年入伙
单位面积及间隔 分层300至1,012平方尺,间隔为开放式、2房连储物室、3房连套房、3房连套房及储物室连厕、3房连套房及储物室连厕加士多房

洋房2,101至3,889平方尺,间隔为3房连3套房及储物室连厕、4房连双套房及储物室连厕、4房连3套房及储物室连厕,以及7房连4套房及储物室加储物室连厕
楼底高度 约9尺10寸至13尺1寸(约3米至4米)
管理公司 仲量联行物业管理有限公司
车位数目 住宅停车位:316
物业总伙数 331伙
座数 9座住宅大厦(第1 座至第3 座及第5 座至第10 座)及29座洋房(洋房1 号至洋房33 号,不设洋房4 号、洋房13 号、洋房14 号及洋房24 号)
最高层数 第1 座至第3 座及第5 座至第10 座: 13 层(不设4 楼、13 楼及14 楼)
小学校网
中学校网
网页
按此查看 (新盘网页)
销售安排
按此查看 (2019-11-11)
注:
所有新盘内容,包括物业资料、图片、影片、绘图等均由28Hse编辑部输入及制作。
以上的物业资料只供参考,一切以发展商最新公布为准
美联物业代理有限公司
C-000982
叶天助 Wilson Yip
S-638369
余安婷 Aylie Yu
S-395968
黄文苑 Annie Huang
S-484227
林达生 Jimmy Lam
S-291533
蔡丽华 Eva Cai
S-577625

地图

山水盈
红毛桥( 巴士站 )
57 米
红毛桥, 青山公路( 巴士站 )
81 米
凹头( 巴士站 )
399 米

热门新盘