The Harbourside #3611241 For Sale Property Detail Page

Id# 3611241
No: H200133167 (by agent)

Kowloon Station The Harbourside [Agency Ads]
3 Blocks A, Middle Floor
Junlin 3-Bedroom Apartment In Victoria Harbor, Zhenghai, Founder, Practical High-Speed Rail, Above E

Junlin 3-bedroom apartment is located above the Founder's Practical High-Speed Rail Plaza in Victoria Harbor
The unit is
maintained and maintained. You can move in in exchange for rent and move in with your bags.
the lobby and bedrooms enjoy incomparable sea views of Victoria Harbor.
upper floor has open sea views
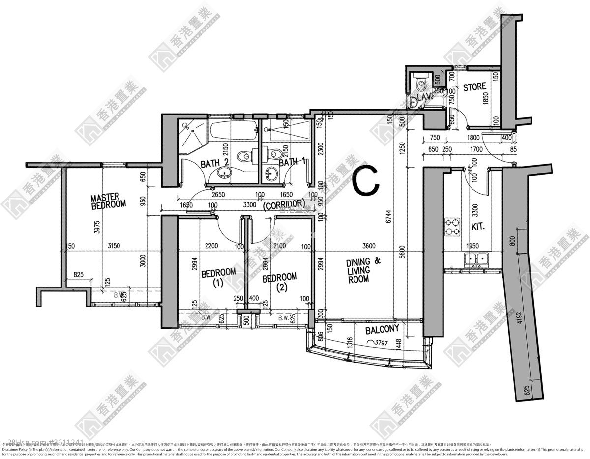
practical area of 1,060 square feet, with 3 bedrooms, 1 bathroom and 1 worker's suite.
Welcome to inquire and make an appointment:
WhatsApp/ Tel: +852 johnny
Rare listi ...

Apartment
Apartment
Hang Lung
Normal Ads
4 days ago posted
Visited#82
View
Sea view
Created:2025-10-17 | Updated:2025-10-17
Mobile QRCode
Sell Price
Sell HKD$48 Millions
Mortgage Monthly Repayment
Initial Payment HKD$24 Millions, Mortgage Ratio 50%
Interest Rate 3%, Years 25
The above payment is for reference only.
Gross Area
1,379 ft²
Unit Price: @34,808
Saleable Area
1,059 ft²
Unit Price: @45,326
Estate
The Harbourside
Kowloon Kowloon Station
Block and Unit: 3 Blocks A
Building age: 21 Year
Direction (Living Room)
South
Floor zone
Middle Floor
Room and Bathroom
3 Bedrooms 2 Bathrooms
Kitchen type
Separate Kitchen
Kitchen cooking mode
Open-frame cooking
Pri School Net
Sec School Net
Address
No.1 Austin Road West
Kowloon( Mtr Station )
141 m
Austin Road West (e1)( Bus Stop )
171 m
Western Harbour Tunnel Bbi - Nga Cheung Road (c1)( Bus Stop )
184 m

Property Agency Company

Company Address: 九龍九龍站
Company License Number: C-018893
Sell: 4 Rental: 11
Hong Kong Property

Contact

Kwok Ming Wang Name Card

Personal License Number: s-577328
English    Cantonese    Mandarin

The Harbourside - Other Units

The Harbourside Flat B, 63/F, Tower 1
1,123ft² @ $40,071
2025-10-14
Land Registry
3 Rooms
Carpark
HKD$45 Millions
+ 5.9%
The Harbourside Flat C, 56/F, Tower 1
805ft² @ $35,404
2025-10-06
Land Registry
2 Rooms
HKD$28.5 Millions
+ 129.9%
The Harbourside Flat F, 11/F, Tower 3
750ft² @ $23,733
2025-10-03
Land Registry
2 Rooms
HKD$17.8 Millions
+ 26.8%
The Harbourside Flat C, 16/F, Tower 2
750ft² @ $28,400
2025-10-02
Land Registry
2 Rooms
HKD$21.3 Millions
+ 21.2%
750ft² @ $23,733
2025-09-26
Market Info
2 Rooms
HKD$17.8 Millions
The Harbourside Flat E, 31/F, Tower 2
743ft² @ $24,024
2025-09-18
Land Registry
2 Rooms
HKD$17.85 Millions
+ 8.2%
The Harbourside Flat E, 57/F, Tower 3
779ft² @ $23,466
2025-09-11
Land Registry
2 Rooms
HKD$18.28 Millions
+ 10.8%
The Harbourside Flat B, High, Block 1
1,123ft² @ $40,071
2025-09-10
Market Info
3 Rooms
Carpark
HKD$45 Millions
The Harbourside Flat B, 33/F, Tower 2
1,049ft² @ $27,264
2025-09-10
Land Registry
3 Rooms
Carpark
HKD$28.6 Millions
+ 15.3%
805ft² @ $35,404
2025-09-09
Market Info
2 Rooms
HKD$28.5 Millions
Hints
To avoid any fraud. We recommend No any prior online payment to the landlord or agency before site inspection or face to face greeting.
Our admin will manually verify all agency identity registration. If you find any mis-presentation or conduct by the agency, you can use the complaint form to inform us. Our admin will take every reported case seriously. Or you can submit your case to EAA (Tel: 852-21112777) directly by quotating the AdsId. We are always working with EAA to handle every cases happend on 28Hse.